Herzlich Willkommen!

Wege in die Architektur
Mein Name ist Dirk Brockmann-Behnsen, ich habe diese Seiten gestaltet. Zu einem tieferen Interesse an Architektur können ganz unterschiedliche Wege führen. Meiner begann im Frühjahr 1989, als ich in meiner mündlichen Abiturprüfung Baukörper und Grundriss der Villa Tugendhat vor dem Hintergrund der Bauhaus-Philosophie analysieren sollte. In mir hatte sich während der Vorbereitung auf das Abitur eine große Faszination für diese revolutionäre Art des Denkens und Bauens entwickelt. Viele Jahre später wurde dieses initiale Interesse an der Bauhaus-Architektur und speziell an dem Architekten Ludwig Mies van der Rohe durch einen Besuch eines neueröffneten Klemmsteingeschäftes (den Namen des berühmten Spielwarenherstellers aus dem dänischen Billund nenne ich aus rechtlichen Gründen nicht) neu entfacht. Dort konnte man die Steine einzeln nach Gewicht erwerben, und so baute ich mein erstes Modell: den Barcelona Pavillon, ein noch recht einfach zu realisierender Entwurf. Das nächste Gebäude, das ich mit Klemmsteinen nachbaute, war dann (natürlich) die Villa Tugendhat. Viel Spaß auf diesen Seiten!

Architektonische Miniaturen
Statik
Gestaltung, Tektonik, allgemein die ästhetische Auseinandersetzung des Menschen mit dem umbauten Raum sind zentrale Motive der Architektur. Ohne dezidierte statische Berechnungen kann jedoch kein Gebäude sicher errichtet werden. Was architektonisch realiserbar ist, wird durch die Baustatik und damit letzlich durch die Gesetze der Physik festgelegt.
Im Rahmen dieser architektonischen Miniatur kann exemplarisch nachvollzogen werden, wie die Biegung eines einseitig eingespannten Balkens unter Last berechnet werden kann.
Gestaltung
Die Lasten von Decken, die nicht auf tragenden Wänden aufliegen, müssen durch Stützen abgeleitet werden. In der Antike wurden diese Stützen oder Säulen zu klar gegliederten Elementen architektonischer Gestaltung entwickelt. Ludwig Mies van der Rohe suchte nach Möglichkeiten, Eleganz und Strenge der antiken Säulenordnungen auf die technische Moderne zu übertragen.
Im Rahmen dieser architektonischen Miniatur kann mithilfe eines Klemmstein-Modells nachvollzogen werden, wie die Stützen im Barcelona-Pavillon konstruiert sind.
Bauwesen
Die Verwendung gebrannter Mauerziegel kann bereits 3000 Jahre vor unserer Zeit in Mesopotamien nachgewiesen werden. Als gelerntem Maurer lag Ludwig Mies van der Rohe dieser Baustoff besonders am Herzen. Das praktische Format dieser größennormierten Steine ermöglicht eine Vielzahl von Anordnungen, den sogenannten Mauerverbänden.
Im Rahmen dieser architektonischen Miniatur wird der Mauerziegel als Baumedium vorgestellt, und es werden verschiedene Mauerverbände mit Klemmsteinen nachgebaut.
Übersetzung eines Bauwerkes in ein Klemmstein-Konstrukt
Die Übersetzung eines realen Bauwerkes in ein Klemmsteinkonstrukt verläuft in einem zyklischen Prozess mit drei Phasen:
- Ideenfindung durch allgemeine Betrachtung und Auswahl eines realen Bauwerkes
- Analyse von Grundrissen und Fotografien des Bauwerkes
- Konstruktion des Modells nach Erwerb von Steinen

01 Ideenfindung
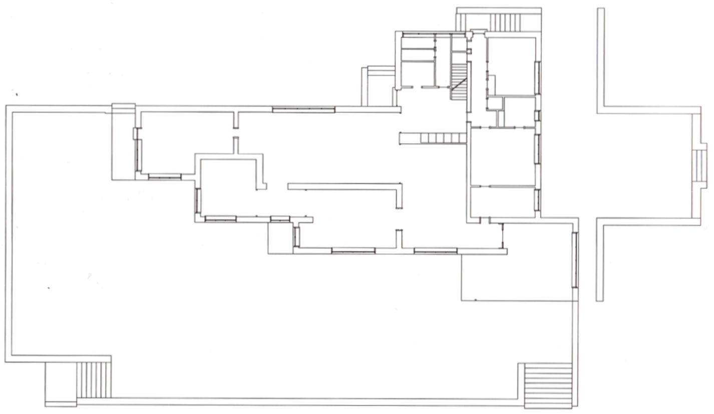
Bei der Betrachtung realer Bauwerke oder während des Studiums diverser Medien findet sich ein Objekt, an dessen Nachbau Interesse besteht. Die Erfahrung lehrt, ob ein Nachbau grundsätzlich realisierbar ist oder nicht. Wichtige Kriterien sind in diesem Zusammenhang eine allgemeine Einschätzung der Kosten und des Aufwands. Auch kann in dieser Phase der geplante Maßstab schon grob skaliert werden. Er hängt unter anderem davon ab, ob das Bauwerk charakteristische Gestaltungselemente enthält, die durch bestimmte Klemmsteine geeignet dargestellt werden können. Typisches Beispiel hierfür sind bei Bauhaus-Gebäuden die Fensterfronten, da es nur eine begrenzte Anzahl an durchsichtigen Klemmsteinarten gibt. Exemplarisch soll nun der Nachbau des Hauses Esters (1927 - 1930), einem Frühwerk Mies van der Rohes, nachvollzogen werden
Haus Esters (Gartenansicht)
02 Analyse
Sobald die Entscheidung für ein bestimmtes Gebäude gefallen ist, müssen Grundrisse und Fotografien dieses Gebäudes beschafft werden. Es wird analysierst, inwiefern sich der Grundriss und die äußeren Gestaltungsmerkmale des Gebäudes mit Klemmsteinen darstellen lassen. Dazu kann beispielsweise am Computer ein Karoraster über den Grundriss gelegt und solange skaliert werden, bis es zu einer guten Übereinstimmung zwischen Mauerführung und Karoraster kommt. Jedes Karo des Musters entspricht dabei einer Noppe (Stud) eines Klemmsteins. Die folgende Abbildung zeigt beispielsweise den Originalgrundriss des Hauses Esters (1927 -1930) und die skalierte Übersetzung auf Karopapier:

Grundriss des Hauses Esters

Grundriss des Hauses Esters auf Karopapier
Anhand von Fotografien wird analysiert, inwiefern Konstruktionsdetails des Gebäudes in Klemmsteinanalogien überführt werden können. Die folgenden Abbildungen zeigen beispielsweise Details der Fassade aus Mauerziegeln und ihre Interpretation im Modell:
Detail der Außenfassade aus Mauerziegeln

"Mauerwerk" aus Klemmsteinen des Typs "Plate"

Blockverband mit "Bricks" gemauert
Die Originalfassade ist im Blockverband angelegt. Dies ist mit den Klemmsteinen des Formats "Plate" leider nicht möglich, mit Klemmsteinen des Typs "Bricks" zwar schon, dann würde das Bauwerk insgesamt jedoch zu groß werden.
Um nun eine möglichst ähnliche Anmutung zu erzeugen, könnten die Klemmsteine im Läuferverband angeordnet werden. Bewusst sollten neue und gebrauchte Klemmsteine vermischt verwendet werden, um das lebhafte Farbspiel des originalen Mauerverbandes nachzubilden.
03 Konstruktion
Nun beginnt der Bau des Modells. Dazu müssen zunächst einmal Klemmsteine in ausreichender Stückzahl beschaffet werden. Online geht dies z. B. über:
Teile des Baus (bzw. bei kleineren Projekten auch der ganze Bau) können mit spezieller Software am Computer digital (vor-)gebaut werden. Ein geeignetes Programm ist beispielsweise StudiO, das auf o. g. Internetseite zum Download bereitsteht. Das nachstehende Bild zeigt eine mit StudiO erstellte Studie der Loggia des Hauses Esters:

Digitaler Entwurf der Loggia des Hauses Esters
Während das Modell gebaut wird, müssen die drei Phasen des hier beschriebenen Zyklus vermutlich mehrmals durchlaufen werden: Ideenfindung und Analyse spielen sich dabei allerdings zunehmend im Detail ab. Schließlich ist das Klemmsteinmodell vollendet.

Das fertige Haus Esters, integriert in die Aufnahme aus Abschnitt 01. Im Vordergrund sieht man die realisierte Loggia aus dem obigen Entwurf.
Material
Wirken die Werke Ludwig Mies van der Rohes - der Bauhaus-Philosophie folgend - in der Regel schlicht, so darf dies nicht darüber hinweg täuschen, dass der Meister beim Bauen ausschließlich edelste und kostbarste Materialien verwendete ...
Makassar Ebenholz
Das Makassar-Ebenholz gehört weltweit zu den wertvollsten Edelhölzern. Es besitzt eine farbenreiche Maserung und eine äußerst glatte Oberfläche. Deshalb wird es zur Herstellung von Furnieren, Luxusmöbeln, Vertäfelungen und Parkett verwendet. Die Art Diospyros celebica, aus der das Ebenholz gewonnen wird, gehört heute wegen starker Rodung zu den bedrohten Baumarten.
Bronze
Bronze ist eine Legierung aus Kupfer (mindestens 60%) und Zinn von goldener bis tiefbrauner Farbe. Bronze ist korrosionsbeständig und gut zu schmieden. Sie lässt sich jedoch nicht auf Hochglanz polieren. Mit der Zeit bildet sich an der Oberfläche oxidationsbedingt eine Patina, die eine tief dunkelbraune Färbung annimmt. Durch Beschichtungen und den Einsatz von Wachs lässt
sich der ursprüngliche Goldton für eine
gewisse Zeit konservieren.
Edelstahl
Edelstahl bezeichnet legierte oder unlegierte
Stähle, die mindestens 10,5 % Chrom und weniger als
1,2 % Kohlenstoff enthalten. Durch die stofflichen Beimengungen der Legierung können die Eigenschaften des Edelstahls gezielt verändert werden. Umgangssprachlich wird Edelstahl oft auch als rostfreier Stahl bezeichnet. Edelstahl bietet bautechnisch eine ganze Reihe von Vorteilen: Er ist temperatur- und korrosionsbeständig,
hygienisch, gut zu verarbeiten
und langlebig.
Onyx Marmor
Als Onyx werden spezielle Farb-Varietäten von Chalcedon oder Achat bezeichnet, die ihrerseits Varietäten des Minerals Quarz (SiO2) sind. Definitionsgemäß gilt dabei rein schwarz gefärbter Chalcedon sowie schwarz-weiß gebänderter Achat als Onyx. Wenn das Mineral als unstrukturierte Masse auftritt, nennt man es Chalcedon, besteht es aus deutlich sichtbaren, unterschiedlich gefärbten Schichten oder Bändern, nennt man es Achat.
Literatur und Film
“
I had no conventional architectural education.
I worked under a few good architects;
I read a few good books - and that's about it.
Ludwig Mies van der Rohe, 1965
Literatur
Bauhaus Archiv (1986). Der vorbildliche Architekt. Mies van der Rohes Architekturunterricht 1930-1958 am Bauhaus und in Chicago. Berlin: Nicolaische Verlagsbuchhandlung Bauermann
Beam, A. (2020). Broken Glass. Mies van der Rohe, Edith Farnsworth, and the Fight over a Modernist Masterpiece. New York: Random House
Blake, P. (1961). The Master Builders. Le Corbusier. Mies van der Rohe. Frank Lloyd Wright. New York: Alfred A. Knopf
Blaser, W. (1980). Mies van der Rohe - Möbel und Interieurs. Stuttgart: Deutsche Verlagsanstalt
Blaser, W. (1999a). Mies van der Rohe. Farnsworth House. Basel: Birkhäuser
Blaser, W. (1999b). Mies van der Rohe. Lake Shore Drive Apartments. Basel: Birkhäuser
Blaser, W. (2001). Mies van der Rohe. Crown Hall. Basel: Birkhäuser
Blaser, W. (2002). Mies van der Rohe. IIT Campus. Basel: Birkhäuser
Bocchio, I. (Hrsg.).(2018). Mies van der Rohe. Zwischen Südtirol und New York. Edition Raetia
Erfurth, H., & Tharandt, E. (1995). Ludwig Mies van der Rohe. Die Trinkhalle. Sein einziger Bau in Dessau. Dessau: Anhaltische Verlagsanstalt mbH
Ferrer Casas, A. (2019). Mies. Mies van der Rohe - ein visionärer Architekt. Hamburg: Carlsen
Glaeser, L. (1977). Ludwig Mies van der Rohe. Furniture and Furniture Drawings from the Design Collection and the Mies van der Rohe Archive. New York: The Museum of Modern Art
Heynen, J. (2000). Ein Ort der denkt. Haus Lange und Haus Esters von Ludwig Mies van der Rohe. Moderne Architektur und Gegenwartskunst. Publikation der Krefelder Kunstmuseen
Jäger, J. (2011). Neue Nationalgalerie Berlin. Mies van der Rohe. Ostfildern: Hatje und Cantz
Kleinman, K., & van Duzer, L. (2005). Mies van der Rohe. The Krefeld Villas. New York: Princeton Architectural Press
Krohn, C. (2014). Mies van der Rohe. Das gebaute Werk. Basel: Birkhäuser
Lambert, P. (2013). Building Seagram. New Haven: Yale University Press
Martin, S., & Wallner, J. (Hrsg., 2021). Lehmbruck. Kolbe. Mies van der Rohe. Künstliche Biotope / Artificial Biotopes. München: Hirmer
Neumann, D. (Hrsg., 2021). Ludwig Mies van der Rohe. Villa Wolf in Gubin. Geschichte und Rekonstruktion. Berlin: Dom Publishers
Neumeyer, F. (Hrsg., 1986). Mies van der Rohe. Das kunstlose Wort. Gedanken zur Baukunst. Berlin: Siedler Verlag
Neumeyer, F. (Hrsg., 2021). Originalton Ludwig Mies van der Rohe. Die Lohan-Tapes von 1969. Berlin: DOM-Publishers
Noack, W. (Hrsg., 2000). Mies van der Rohe. Schlicht und ergreifend. Landhaus Lemke. Berlin: form + zweck
Norberg-Schulz, Chr. (1958). Ein Gespräch mit Mies van der Rohe. Baukunst und Werkform, 11(11), S. 615-618
Plüm, K. (Hrsg., 2013). Mies van der Rohe im Diskurs. Innovationen - Haltungen - Werke. Aktuelle Positionen. Bielefeld: transcript
Schottke, J., & Eichhorn, U. (2021). Mies van der Rohe in Berlin. Berlin: Edition Eichhorn
Schulze, F. (1985). Mies van der Rohe. A Critical Biography. Chicago: The University of Chicago Press
Schulze, F. (1986). Mies van der Rohe. Leben und Werk. Berlin: Wilhelm Ernst und Sohn Verlag
Stach, E. (2018). Mies van der Rohe. Space - Material - Detail. Basel: Birkhäuser
Tafel, E. (1979). Apprentice to Genius. Years with Frank Lloyd Wright. New York: McGraw-Hill
Taut, B. (1963). Frühlicht 1920-1922: Eine Folge für die Verwirklichung des neuen Baugedankens, Berlin, Boston: Birkhäuser.
Tegethoff, W. (1998). Im Brennpunkt der Moderne: Mies van der Rohe und das Haus Tugendhat in Brünn. München
Zimmerman, C. (2009). Mies van der Rohe. Köln: Taschen
Film
Drafz, H. (2011). Häuser/Houses Lange Esters by Mies van der Rohe. Krefeld: Builtby.tv
Reifarth, D. (2013). Haus Tugendhat. Pandora Film
Weisse, I. (2017). Das Jahrhunderbauwerk des Architekten Mies van der Rohe. Die neue Nationalgalerie. Lupa Film
Mies van der Rohe. A Critical Biography von Franz Schulze
Franz Schulzes Biografie Mies van der Rohe - A Critical Biography erschien 1985 und gilt bis heute als ein Standardwerk zu Person und Werk Ludwig Mies van der Rohes. Schulze, der von 1927 bis 2019 lebte, war Professor für Kunstgeschichte am Lake Forest College in Illinois und ein profilierter Architekturkritiker. Mit dieser Biografie gelang es ihm, Leben und Werk des deutschen Bauhaus-Direktors und späteren amerikanischen Architekten differenziert und zugleich lebendig nachzuzeichnen – mit einem scharfen Blick für die Wechselwirkungen zwischen Persönlichkeit, Zeitgeschichte und gebautem Werk.
In meiner Sammlung befindet sich ein besonderes Exemplar der Erstausgabe von 1985: Es trägt eine persönliche Widmung des Autors aus dem Jahr 1986, adressiert an zwei Personen namens Blanche und Jack. Der emotionale Tonfall der Widmung zeigt, wie viel diese beiden Menschen Schulze offenbar bedeuteten – sogar mehr als der Biografierte selbst. Die Zeilen lauten:
To Blanche and Jack,
These words are harder to
write than the book was...
Your place in my life has
been more vital than Mies',
thus something I cherish
beyond words. My love
always and kindest wishes
for the future,
Franz
1986
Solche persönlichen Widmungen sind stille Zeugnisse zwischenmenschlicher Beziehungen. Für mich ist dieses Exemplar nicht nur ein wichtiges Nachschlagewerk, sondern auch ein kleiner Schatz, der das persönliche Umfeld des Autors berührbar macht.







